We use cookies in order to ensure as convenient and personalised user experience as possible.
Laki 28
WAREHOUSE WITH OFFICE IN CONVENIENT LOCATION
Tallinn, Mustamäe linnaosa, Laki 28
1162.50 m2, 4.50 €/m2
6 rooms
5231.25 €
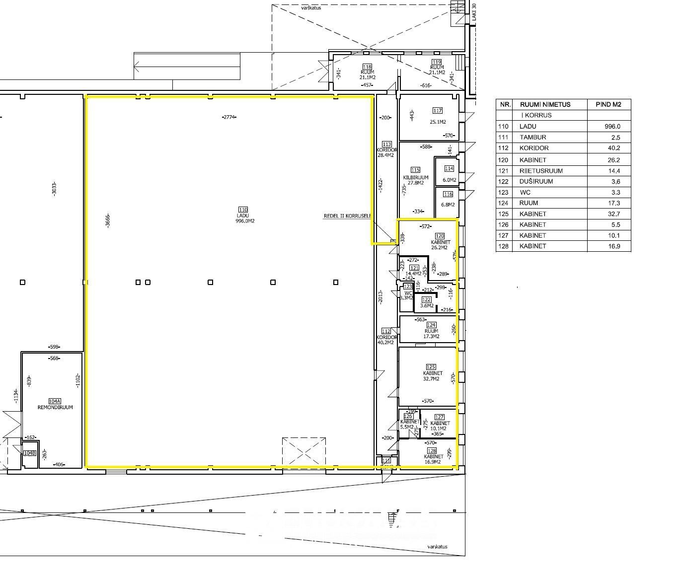
Üürile anda ladu koos bürooga Astro Kvartalis, Laki 28 hoone 1. korrusel. Pind koosneb 996m2 suurusest kõrgest laoruumist (laekõrgus tala alla 4,7m, mujal 5,5m-6,2m) ja kontorist (5 kabinetti, abiruum, duširuum ja tualett).
Hoone on mugavas asukohas Mustamäe äripiirkonnas südames: ligipääs nii Laki tänavalt kui ka Kadaka teelt. Kauba laadimiseks on olemas estakaad.
Hoone ümber on tasuta parkimine.
KAUGUSED / SÕIDUAEG
• Rocca Al Mare keskus 3,1 km / 7 min
• Kristiine keskus 4,7 km / 9 min
• Telliskivi loomelinnak 5 km / 10 min
• Viru Keskus 6,7 km / 14 min
• Lennujaam 8,9 km / 14 min
• Tallinna Sadam 8 km / 17 min
• Lasnamäe Centrum 13,2 km / 21 min
• Viimsi Keskus 18,3 km / 31 min
Üürihind 4,5 eur/m². Lisanduvad kõrvalkulud ja käibemaks.
Pakkumine on vahendustasuta.
Building/site info
Other info
Send request
Share




























