We use cookies in order to ensure as convenient and personalised user experience as possible.
Tatari 58
FIRST 6 MONTHS VERY GOOD PRICE
Tallinn, Kesklinna linnaosa, Tatari 58
532.30 m2, 4.88 €/m2
5 rooms
2600 €
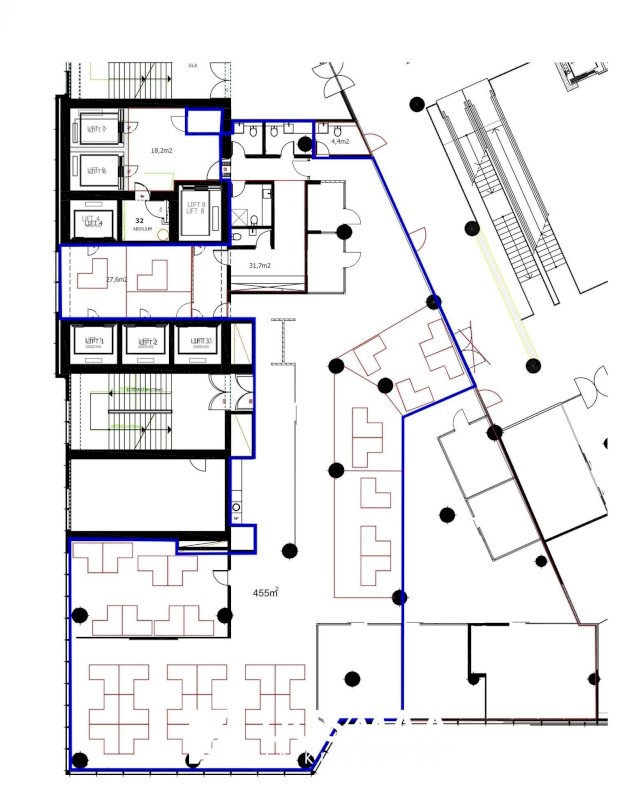
Üürile anda industriaalstiilis äripind Tatari 58 hoone 1. korrusel. Pind on kõrge laega ja avar, hetkel on ruum liigendatud vaheseintega eri suurusega ruumideks, osaliselt on sisse ehitatud vahekorrus. Olemas on kööginurk, tualetid ja saun ning duširuum.
Pinnale sissepääs on läbi büroohoone fuajee, samas on ka tõstuksega sissepääs tänavalt, sest pinna üks osa on garaaž, mida saab kasutada laona vms. Pind sobib bürooks ettevõttele, kes otsib tavapärasest erinevat pinda, samuti on võimalik ruum kohandada treeninguteks vm tegevuseks.
Üürihinnas sisaldub kolm parkimiskohta, lisakohti saab üürida hinnaga 40 eur + KM/ koht / kuu. Lähedal on avalikud parklaid, 5-minutilise jalutuskäigu kaugusel on ühistranspordi peatused, ümbruskonnas on mitu söögikohta.
Üürihind esimesed kuus kuud 2600 eurot kuus, edasi 3200 eurot kuus. Lisanduvad kõrvalkulud ja käibemaks.
Kui otsid tavapärasest erinevat bürood, võta ühendust ja tule vaatama!
Pakkumine on vahendustasuta.
Building/site info
Other info
Send request
Share























