Pärnu mnt 139e/2
PREMISES FOR DENTAL OR OTHER CLINIC
Tallinn, Kesklinna linnaosa, Pärnu mnt 139e/2
729.40 m2, 1700.03 €/m2
22 rooms
1 240 000 €
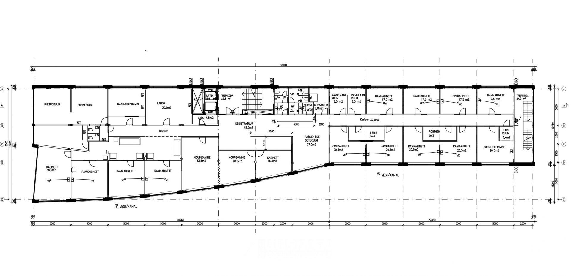
Müüa renoveeritud äripind hambakliinikule või muule meditsiiniettevõttele. Pinnal on avar vastuvõtuala, eri suuruses kabinetid ja vajalikud abiruumid (kontori- ja nõupidamisruumid, labor, personaliruumid, duširuum ja tualetid). Hulk kabinette on täielikult sisustatud uhiuue hambakliinikule vajaliku tehnikaga - osta pind ja saad kohe tegevust alustada!
Vajaduse korral saab pinna kaheks osaks jagada: kui pind on Sinu ettevõtte jaoks liiga suur, üüri pool sellest välja!
Ruumid on hubase siseviimistlusega, avarad ja valgusküllased. Hoones on esinduslik fuajee, kaks lifti, olemas on tänapäevased sidelahendused ning valve- ja läbipääsusüsteemid. Meeldiva sisekliima tagab sundventilatsioon ning ruumipõhiselt reguleeritav jahutus. Kõrvalkulud on mõistlikud.
Pärnu mnt 139e/2 hoone on suurepärases asukohas Tallinna ühel tuiksoonel, kuhu mugav ligipääs nii autoga kui ühistranspordiga. Hoone on väga hästi nähtav, fassaadile saab paigaldada reklaami, mis aitab Sinu äri edukalt turundada.
Pinna juurde kuulub 8 parkimiskohta (notariaalse kasutuskorraga) hoone parklas. Vajaduse korral saab üürida lisakohti. Maja ees on tasuta parkimivõimalus klientidele, ka naabruse tänavatel on tasuta parkimine. Ühistranspordipeatused on mõne sammu kaugusel.
KAUGUSED / SÕIDUAEG
• Rocca Al Mare keskus 7,9 km / 14 min
• Kristiine keskus 3,6 km / 6 min
• Telliskivi loomelinnak 5 km / 10 min
• Viru Keskus 4 km / 9 min
• Lennujaam 7 km / 10 min
• Tallinna Sadam 5,1 km / 11 min
• Lasnamäe Centrum 11,5 km / 17 min
• Viimsi Keskus 15,3 km / 26 min
Müügihind 1 240 000 eurot. Hinnas sisaldub kogu sisustus! Käibemaksu ei lisandu ega sisaldu hinnas.
P.S. Võimalus on ka pind üürida - alusta üürnikuna ning otsusta mõne aasta pärast, kas soovid pinna osta!
Building/site info
Other info
Send request
Share






















