We use cookies in order to ensure as convenient and personalised user experience as possible.
Fosforiidi 12
DEVELOPMENT PROJECT WITH BUILDING PERMIT IN MAARDU
Maardu linn, Fosforiidi 12
1699.30 m2, 291.30 €/m2
495 000 €
Development project for sale with a building permit for the construction of guest apartments along the main access road to Maardu city. The Fosforiidi 12 property is surrounded mainly by industrial, commercial, and warehouse buildings.
The building has already been completely demolished inside (except for partial wooden beams) and is ready for reconstruction.
According to the project, the building will be converted from an office building to an accommodation facility. During the reconstruction, the building will be insulated externally. The expansion of the building will occur on the roof floor, where the existing roof height will be preserved, but dormers will be built into the roof to create accommodation rooms under the roof.
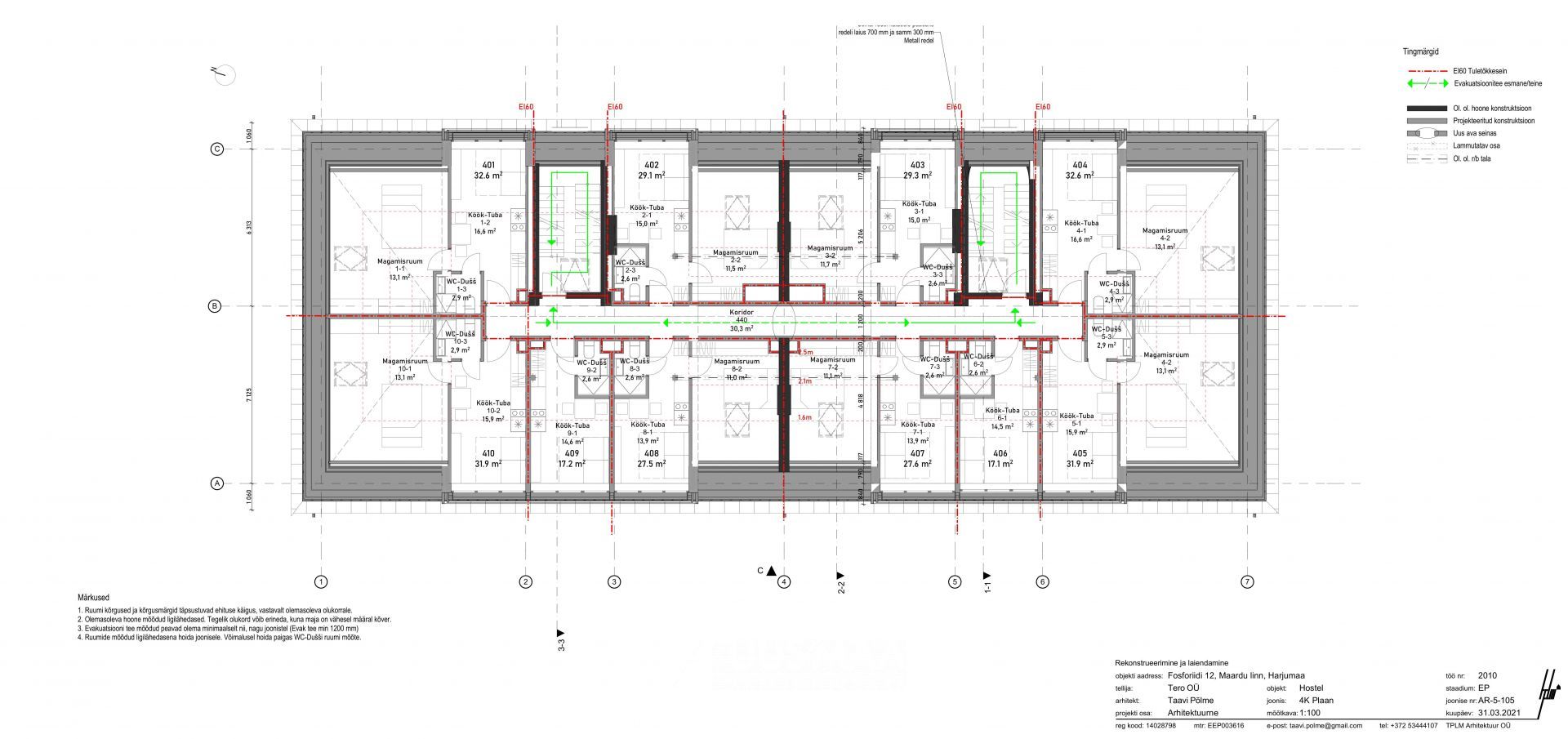
The building is designed to have 70 accommodation rooms, primarily consisting of single rooms, each equipped with a WC and shower.
The basement floor is designed for technical and utility rooms, bicycle storage, and a shared laundry room.
Accommodation rooms are planned for floors 1-3 and the attic. The accommodation rooms will have a bathroom and a kitchenette for preparing hot food. The rooms on floors 1-3 are mainly single-room units.
The attic (4th floor) rooms are larger, featuring a separate sleeping area in addition to the kitchenette.
Planned use: Guest apartments
Number of rooms: 70
Parking spaces: 35 (minimum required 28)
Bicycle parking and spacious courtyard area
Total net area: 2071.4 m² (above ground 1636.5 m², underground 434.9 m²)
- Electricity connection available – main fuse 3x63A.
- Water/sewage connection also available, but new lines need to be built to the house according to the building permit.
- There is a project with a building permit for gas connection.
The sale price is subject to VAT at the applicable rate.
Building/site info
Other info
Send request
Share







