We use cookies in order to ensure as convenient and personalised user experience as possible.
Kesk-Sõjamäe 8
KÜLALISKORTERITE ARENDUSPROJEKT ÜLEMISTEL
Tallinn, Lasnamäe linnaosa, Ülemiste, Kesk-Sõjamäe 8
2195.80 m2, 270.97 €/m2
595 000 €
/ Planeeritud suletud netopind 1737,5 m²
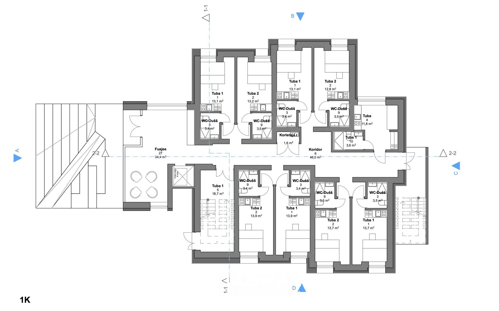
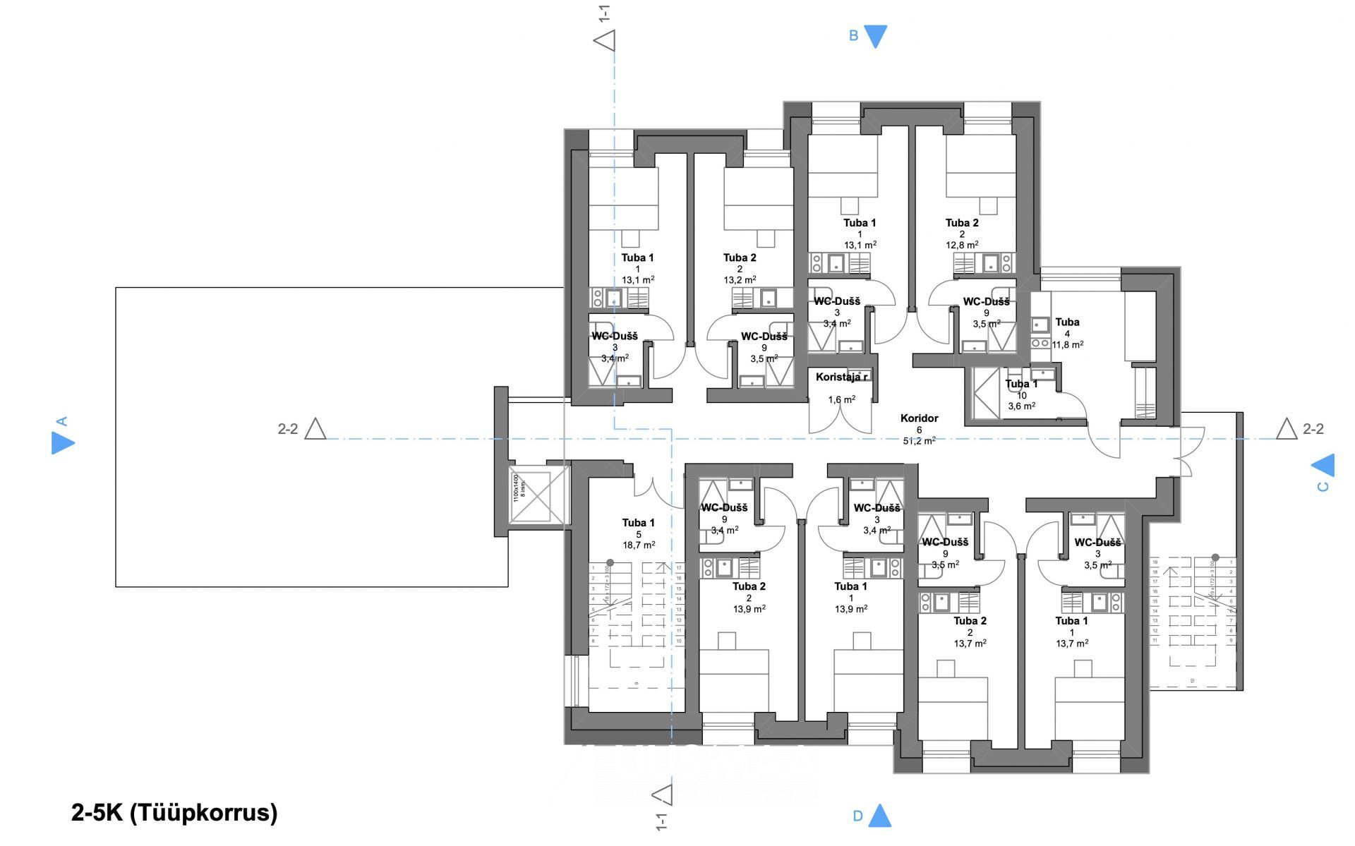
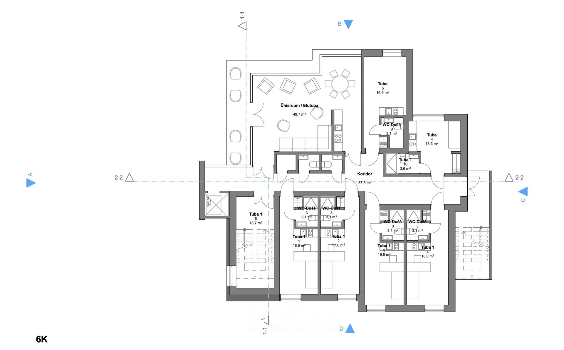
/ 53 tuba
/ 6. korrusel ühisala
/ 12 parkimiskohta
/ ehitusluba ei ole menetletud
ESKIISPROJEKT
Tehtud on eskiisprojekt Kesk-Sõjamäe tn 8 kinnistul asuva olemasoleva hoone rekonstrueerimiseks ja laiendamiseks. Antud eskiisprojekt on esmane visioon ja idee Kesk-Sõjamäe tn 8 kinnistul asuva hoone rekonstrueerimiseks ja laiendamiseks (laiendus jääb 33% sisse).
Sellele hoonele on suhteliselt täisprojekt:
- Põhiprojekti staadiumis arhitektuur, küte, elekter, VK.
- Tööprojekti staadiumis konstruktiivne.
- Lisaks sisearhitektuur.
Olemasolev hoone on 5 korruseline, millel on lisaks üks maa-alune korrus. Eskiisprojekt näeb ette ühe lisakorruse ehitamist. Hoone maapealsetele korrustele(1-6 korrus) on planeeritud ühe inimese hosteli toad. Igas toas on kööginurk söögitegemiseks. Igale korrusele võimalik rajada 9 hosteli tuba (kokku planeeritud 53 tuba). 6-ndale juurde ehitatavale korrusele tuleb ühisruum kööginurgaga. See saab olema hosteli kasutatavate inimeste kohtumiskohaks. Ühisruumist avanevad vaated lennurajale ja Ülemiste linnakule.
Kinnistu sihtotstarve on hetkel 100% elamumaa.
Olemasolev punastest kärgtellistest fassaadiga hoone on pooleliolevas seisundis. Antud piirkonnas on tegu ainsa elamufunktsiooniga hoonega.
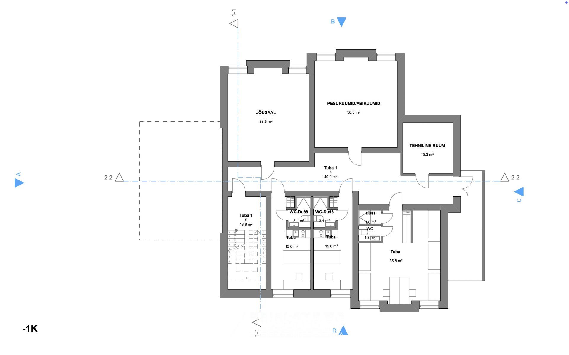
Hoone planeeritud netopind on 1737,5 m², millest maa peal on 1371,4 m² ja 366,1 m² maa all.
Liitumised:
- Olemas elektriliitumine 3 x 160 A
- Vee- ja kanalisatsiooni liitumispunkt kohe ristmikul
- Sadevee ärajuhtimiseks olemas ehitusluba
Ärikondlik investeerimisobjekt.
Building/site info
Send request
Share












