Sinilille 6
Kõrge laega ladu-kontor Peetris
Rae vald, Peetri alevik, Sinilille 6
619.10 m2, 6.95 €/m2
4300 €
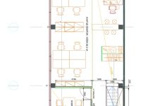
Sinilille tee 6, Peetris on üürile anda 619,1 m² ladu-kontor. Pind sobib hästi e-kaubandusele, hulgimüügile, laologistikale või ettevõttele, kes vajab koos laoruumi ja kontoriosa. Suurimad eelised on 9 m kõrgune ladu 474 m2, kaks laadimisvõimalust (laadimissild ja maast), kahel korrusel paiknev kontor (I k 59,7 m2 ja II k 85,4 m2) ning väga hoone taga mugav ligipääs veokitele.
PAINDLIK ÄRIPIND
Boks 13 koosneb laoosast ning kontorist, mis paikneb kahel korrusel. Lisaks on olemas kööginurk. Laos olevad riiulid viiakse välja, seega saab uus üürnik pinna kujundada vastavalt oma tegevuse vajadustele.
TÕHUS LAADIMINE
Laol on hoone taga laadimissild ning maja ees eraldi maastlaadimisuks. Hoone taga on avar ala, kus saab rekkaga mugavalt manööverdada. See on oluline eelis ettevõttele, kelle töö sõltub sujuvast kaubavahetusest.
HEA ASUKOHT
Sinilille tee 6 asub Peetri aktiivses äripiirkonnas, hästi ligipääsetavas asukohas. Asukoht toetab igapäevast logistikat ning tagab mugava ühenduse töötajatele, klientidele ja tarnijatele.
MUGAV PARKIMINE
Parkimiskohad asuvad nii hoone ees kui ka taga, mis on mugav nii töötajatele, klientidele kui ka kaubavedajatele.
LISAINFO
Küte on gaasiküttel. Üür on 4300 € kuus + km. Pakkumine on vahendustasuta.
Huvi korral võta ühendust ja tule pinnaga tutvuma.
Fred Linnukütt
5347 2228
fred@uusmaa.ee
Building/site info
Send request
Share














