Ärikinnisvara newsletter

Cookies

Uus Maa Ärikinnisvara uses cookies for statistical analysis, to personalise your experience, offer you content that targets your particular interests and analyse the performance of our advertising campaigns. You can manage your preferences and learn more by clicking on 'Cookie settings' and at any time in the Privacy policy.


Cookies preferences

These cookies are necessary for the website to function and are always active. They are usually set in response to an action taken by you, such as personalizing your privacy preferences, logging in, or managing website security. You can set your browser to block or alert you about these cookies, but if you block these cookies, some parts of the website may not function properly.

These cookies allow us to count visits and traffic sources so the performance of the site can be measured and improved. They help us know which pages are the most and least popular and see how visitors move around the website. These cookies may be placed on our website by us (or by our vendors) to collect analytics, statistics, and other information about how you and others use the website.

Allveelaeva 4

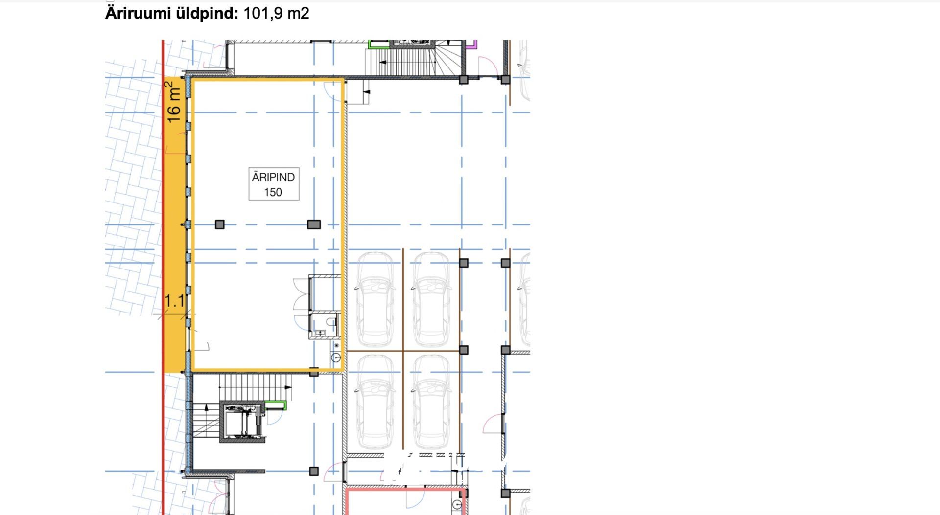
WELL VISIBLE EXCELLENT 1ST FLOOR PREMISE

Tallinn, Põhja-Tallinna linnaosa, Allveelaeva 4

101.90 m2, 20.50 €/m2

1 rooms

2088.95 €

For rent: a beautiful street-level commercial space with a private entrance in the prestigious Noblessner Quarter. This highly visible unit is ideal for a showroom, gallery, service business, office, or representative boutique (there are some illustrative pictures for inspiration in photo gallery). .

The space is in an excellent location, on the street leading to Noblessner’s central square. Advertising can be installed on the building’s façade and will also be visible from Kalaranna Street. There is a public parking area next to the building, and bus stops are just a few steps away.

The unit consists of a bright sales area with nearly 4-metre-high ceilings and display windows, as well as a kitchenette and toilet. The premises are equipped with central heating, heat-recovery ventilation, and a cooling system, ensuring a comfortable indoor climate in all weather conditions.

Noblessner is an attractive area featuring exclusive apartments and commercial spaces. It offers a mix of historic and modern architecture which, together with the beautiful marina, creates a unique urban environment that has become a highly valued residential and business district. Noblessner is developing rapidly, with new apartments and commercial premises being added, along with a growing number of businesses such as restaurants, service providers, shops, and more. Thanks to its proximity to the city centre, several well-known companies have chosen to locate their offices and representative spaces in this inspiring area.

Rent: €20.5/m². Service charges and VAT are added.

If you are looking for a highly distinctive and representative space for your business, get in touch and come see it.

The offer is commission-free.

Building/site info

TransactionOffice, Commerce, Service
Area101.90 m2
Rooms1 rooms
Floor1/6
State of completionNew development
Year of construction2024
Energy labelB
OwnershipApartment ownership

Other info

Shop window
Air conditioning
Ventilation
High ceilings
Separate entrance
Entrance from the street

Send request

Share

Print

Similar objects