Narva mnt 36
Stylish office in historical building
Tallinn, Kesklinna linnaosa, Narva mnt 36
385 m2, 10.91 €/m2
5 rooms
4200 €
ÜÜRIHIND ESIMESEL AASTAL 4200€ KUUS, HINNAS KA KUUS PARKIMISKOHTA
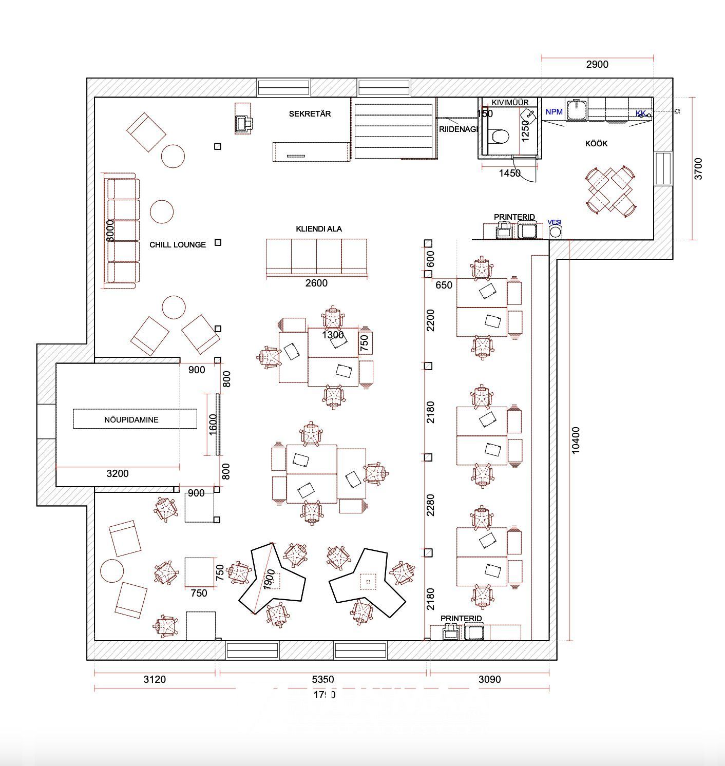
Üürile anda kaunis ja hubane büroo värskelt renoveeritud ärihoones Tallinna Ülikooli vastas. Hoone 2. ja 3. korrusel paikneva invpireeriva atmosfääriga pinna koossseisus on avatud tööalad, nõupidamisruumid, mõlemal korrusel kööginurk ja tualettruumid. Soovi korral saab kasutamiseks mööblit.
Tänu suurepärasele heliisolatsioonile on pinnal väga vaikne. Paigaldatud on kaasaegne ventilatsiooni- ja jahutussüsteem, mis tagab meeldiva sisekliima igal aastaajal.
Pinnale on ligipääs hoone peauksest, aga ka eraldi sissepääs, mis on privaatne.
Hoone on mugavas asukohas, lühikese jalutuskäigu kaugusel südalinnast. Ühistranspordi peatused on vahetus läheduses ning maja sisehoovis asub suur parkimisala. Klientidele on parkimisvõimalus ka maja kõrval Europark parklas ning ümbruse tänavatel (Kreutzwaldi, Raua ja Vase tänaval). Majas on hinnatud Itaalia restoran Como, läheduses on palju erinevaid söögikohti, kaunis Kadrioru park ja Reidi tee promenaad.
Narva mnt 36 on silmapaistva arhitektuuriga ajalooline hoone. Arhitekt Nikolai Thamme oma pere tarbeks projekteeritud hoone valmis 1880 aastal. Hoone on läbinud täieliku renoveerimise, mis viidi lõpule 2024. aastal, säilitades ajaloolise arhitektuuri eripära ning tuues sisse kaasaegsed lahendused.
Üürihind esimesel aastal vaid 4100 eurot kuus, lisanduvad käibemaks ja kõrvalkulud.
NB: Kui vajad väiksemat pinda, on võimalik üürida ka vaid üks korrus (227m2 või 156m2 pind - küsi lisainfot!)
Kui see kaunis büroo Sind kõnetab, võta ühendust ja tule vaatama!
Pakkumine on vahendustasuta!
Building/site info
Other info
Send request
Share



























































