Ärikinnisvara newsletter

Cookies

Uus Maa Ärikinnisvara uses cookies for statistical analysis, to personalise your experience, offer you content that targets your particular interests and analyse the performance of our advertising campaigns. You can manage your preferences and learn more by clicking on 'Cookie settings' and at any time in the Privacy policy.


Cookies preferences

These cookies are necessary for the website to function and are always active. They are usually set in response to an action taken by you, such as personalizing your privacy preferences, logging in, or managing website security. You can set your browser to block or alert you about these cookies, but if you block these cookies, some parts of the website may not function properly.

These cookies allow us to count visits and traffic sources so the performance of the site can be measured and improved. They help us know which pages are the most and least popular and see how visitors move around the website. These cookies may be placed on our website by us (or by our vendors) to collect analytics, statistics, and other information about how you and others use the website.

A. H. Tammsaare tee 92

HEA HINNA KA KVALITEEDI SUHE, MUGAV PARKIMINE

Tallinn, Mustamäe linnaosa, A. H. Tammsaare tee 92

516 m2, 11.50 €/m2

9 rooms

5934 €

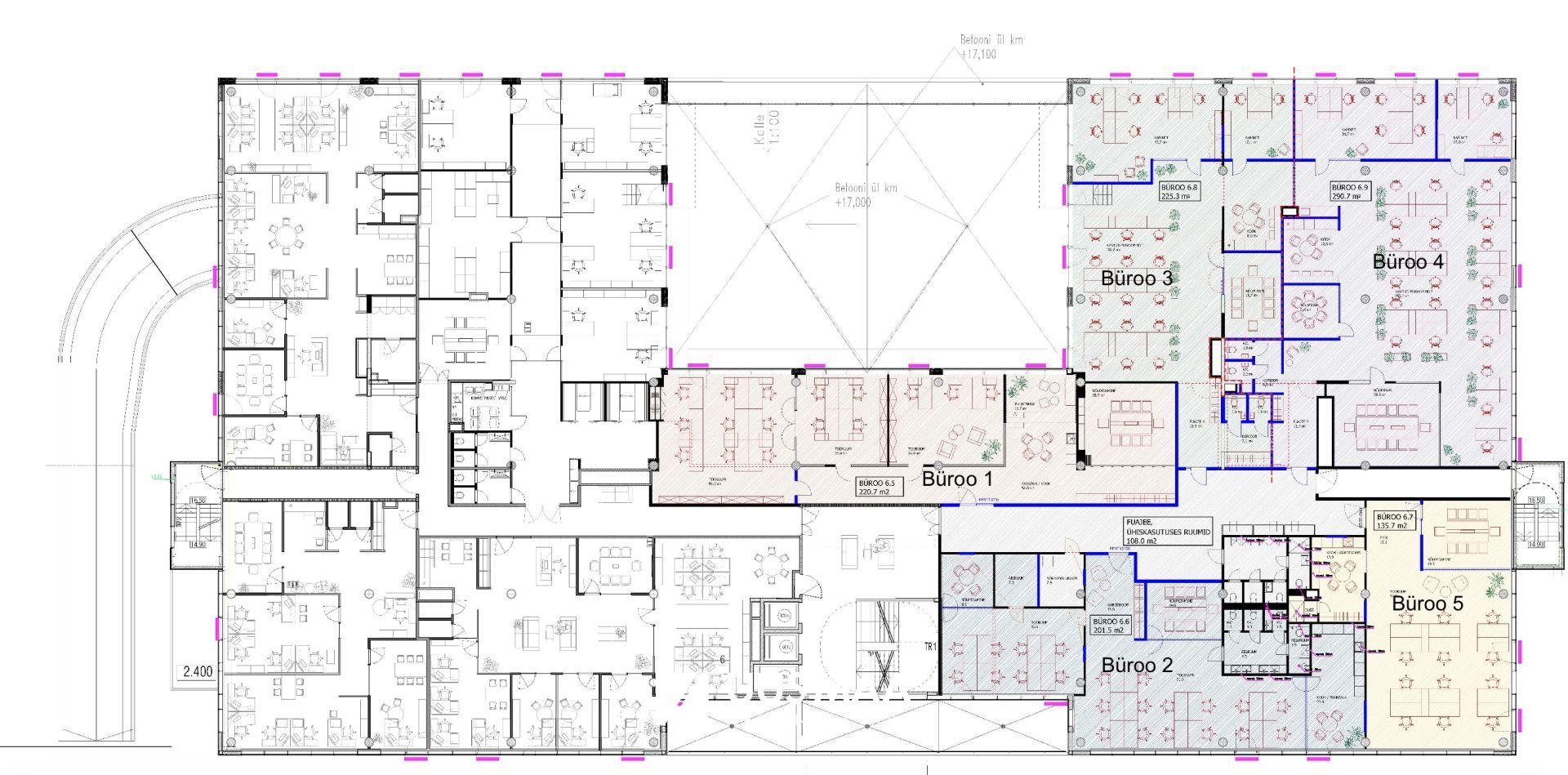
Üürile anda avar ja valgusküllne büroo Mustmäel, Mauruse Majas. Büroo (plaanid bürood nr 3 ja 4), mis paikneb 6. korrusel on suurte akendega ja pakub kauneid vaateid Mustamäe rohelusele. Lisandväärtuseks on pääs terrassile.

Pind tekib suurema büroo jagamisel, seega saab kaasa rääkida ruumilahenduse, siseviimistluse ja veidi ka pinna suuruse osas. Fotogaleriis on näited siseviimistlusest.

Maja on valminud alles 2020. aastal. Hoones on keskküte, kaasaegne ventilatsioon ja jahtus, mis tagab meeldiva sisekliima. Hoonel on A-energiaklass, kõrvalkulud madalad.

Mauruse Majas on mugavalt ja kompaktselt koos büroopinnad ja parkimismaja - saad hoida auto kuivas parklas ning parklast kuiva jalaga büroosse astuda. See hoone on ideaalne ettevõtetele, kes vajavad palju parkimiskohti, sest hoone parkimismajas ja väliparklas on kokku üle 500 soodsa hinnaga parkimiskoha. Hoones on ka jalgrattaparkla.

Mauruse Maja on Mustamäe tuntud maamärk Mustamäe Keskuse kõrval - hoone on silmapaistev ja mugavalt ligipääsetavas asukohas, fassaadile saab paigaldada reklaami.

Naabruses on Mustamäe Keskus, kus supermarket, söögikohad, kauplused ja spordiklubi. Lühikese jalutuskäigu kaugusel on ühistranspordi peatused.

KAUGUSED / SÕIDUAEG
• Rocca Al Mare keskus 4 km / 8 min
• Kristiine keskus 3,9 km / 8 min
• Telliskivi loomelinnak 4,9 km / 11 min
• Viru Keskus 5,7 km / 13 min
• Lennujaam 7,5 km / 13 min
• Tallinna Sadam 7 km / 17 min
• Lasnamäe Centrum 11,8 km / 21 min
• Viimsi Keskus 17,5 km / 32 min

Üürihind plaanil oleva ruumilahenduse korral on 11,5 eur/m². Lisanduvad kõrvalkulud ja käibemaks.

NB! Pakkuda saab ka suuremat või väiksemat pinda, samuti 1. korruse kaubanduspinda ja ladu. küsi lisainfot.

Pakkumine on vahendustasuta.

Building/site info

TransactionOffice
Area516.00 m2
Rooms9 rooms
Floor6/8
State of completionGood Condition
Year of construction2020
Energy labelB

Other info

Lift
Meeting room
Intercom
Air conditioning
Ventilation
Internet

Send request

Share

Print

Similar objects