A. H. Tammsaare tee 92
HEA HINNA JA KVALITEEDI SUHE, MUGAV PARKIMINE
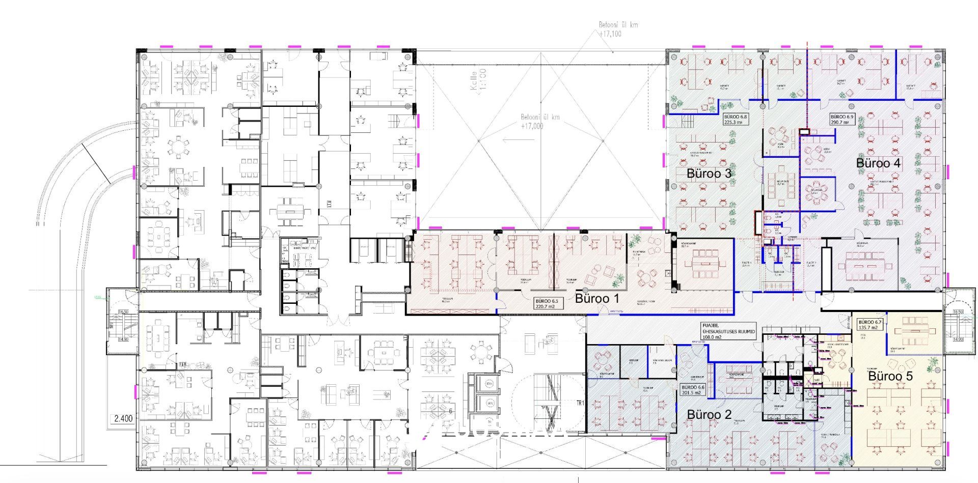
Tallinn, Mustamäe linnaosa, A. H. Tammsaare tee 92
201.50 m2, 11.50 €/m2
5 rooms
2317.25 €
Üürile anda avar ja valgusküllne büroo Mustmäel, Mauruse Majas. Büroo (plaanil büroo nr 2), mis paikneb 6. korrusel on suurte akendega ja pakub kauneid vaateid Mustamäe rohelusele.
Pind tekib suurema büroo jagamisel, seega saab kaasa rääkida ruumilahenduse, siseviimistluse ja veidi ka pinna suuruse osas. Fotogaleriis on näited siseviimistlusest (pildid on illustratiivsed).
Maja on valminud alles 2020. aastal. Hoones on keskküte, kaasaegne ventilatsioon ja jahtus, mis tagab meeldiva sisekliima. Hoonel on A-energiaklass, kõrvalkulud madalad.
Mauruse Majas on mugavalt ja kompaktselt koos büroopinnad ja parkimismaja - saad hoida auto kuivas parklas ning parklast kuiva jalaga büroosse astuda. See hoone on ideaalne ettevõtetele, kes vajavad palju parkimiskohti, sest hoone parkimismajas ja väliparklas on kokku üle 500 soodsa hinnaga parkimiskoha. Hoones on ka jalgrattaparkla.
Mauruse Maja on Mustamäe tuntud maamärk Mustamäe Keskuse kõrval - hoone on silmapaistev ja mugavalt ligipääsetavas asukohas, fassaadile saab paigaldada reklaami.
Naabruses on Mustamäe Keskus, kus supermarket, söögikohad, kauplused ja spordiklubi. Lühikese jalutuskäigu kaugusel on ühistranspordi peatused.
KAUGUSED / SÕIDUAEG
• Rocca Al Mare keskus 4 km / 8 min
• Kristiine keskus 3,9 km / 8 min
• Telliskivi loomelinnak 4,9 km / 11 min
• Viru Keskus 5,7 km / 13 min
• Lennujaam 7,5 km / 13 min
• Tallinna Sadam 7 km / 17 min
• Lasnamäe Centrum 11,8 km / 21 min
• Viimsi Keskus 17,5 km / 32 min
Üürihind plaanil oleva ruumilahenduse korral on 11,5 eur/m². Lisanduvad kõrvalkulud ja käibemaks.
NB! Pakkuda saab ka suuremat või väiksemat pinda, samuti 1. korruse kaubanduspinda ja ladu. küsi lisainfot.
Pakkumine on vahendustasuta.
Building/site info
Other info
Offers in this building
A. H. Tammsaare tee 92
442.00 m2
5
5259.80 €
A. H. Tammsaare tee 92
628.00 m2
5
7222.00 €
A. H. Tammsaare tee 92
186.00 m2
1674.00 €
A. H. Tammsaare tee 92
516.00 m2
9
5934.00 €
A. H. Tammsaare tee 92
290.70 m2
5
3343.05 €
A. H. Tammsaare tee 92
218.40 m2
3
1856.40 €
A. H. Tammsaare tee 92
1191.00 m2
9
11314.50 €
Send request
Share




















































