Kasutame küpsiseid, tagamaks võimalikult mugava ja individuaalse kasutajakogemuse.
Laki 30
Astro Kvartal - Laki 30
Tallinn, Mustamäe linnaosa, Laki 30
7356.00 m2
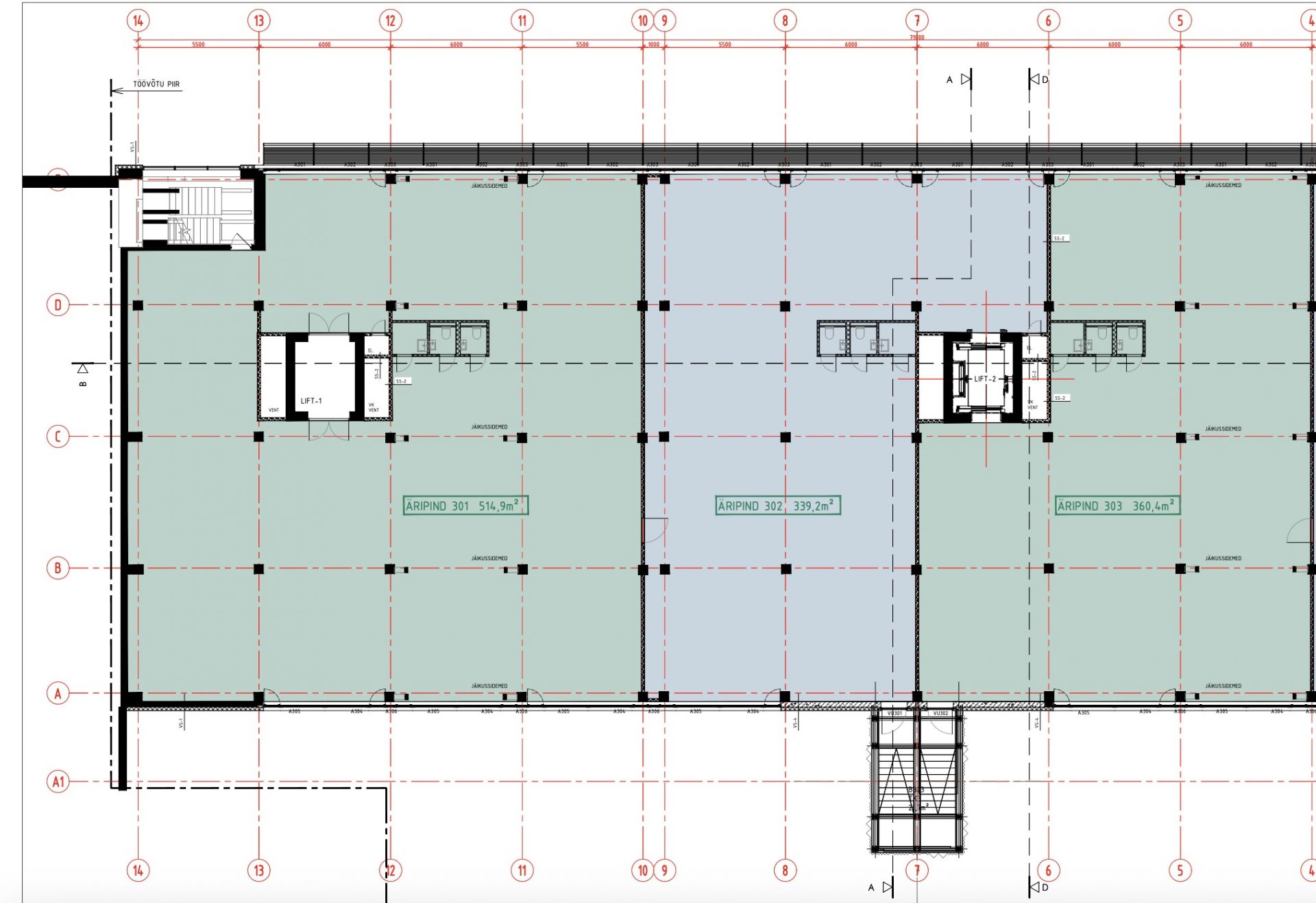
Mustamäel Astro Kvartalis mõne aasta eest rekonstrueeritud Laki 30 hoones, on veel kuni 1200m2 pinda, mis rekonstrueerimise ootel. Pind paikneb 3. korrusel, ligipääsuks on olemas kaubaliftid, seega sobib pind hästi nt dokumendihoidalks, kergtootmiseks, bürooks vms.
Ruumid on suurte akende ja ca 3m kõrguste lagedega. Standard siseviimistlus on kvaliteetne ja esinduslik ning pind valmib koostöös tulevase üürnikuga - st saad ca 6-kuulise ooteajaga just sellise ruumilahendusega pinna nagu soovid.
Hoone on esindusliku välisilmega ning rekonstrueerimise käigus on paigaldatud tänapäevased tehnosüsteemid (soojustagastusega ventilatsioonisüsteem ning tsentraalse jahutussüsteem), mida juhitakse hooneautomaatika kaudu. Hoones on keskküte, kogu elektrisüsteem ja tuleohutussüsteemid on täielikult uuendatud, samuti on uus sisevõrgu lahendus, terviklik läbipääsu- ja valvesüsteem ning üldalade videovalve.
Laki 30 hoone on mugavas asukohas Mustamäe äripiirkonna südames. Parkimine on tasuta, klientidele on mugav parkimisvõimalus hoones ees, üürnikele on parkla ka kinnises hoovis. Parklates on elektriautode laadijad, samuti kinnine jalgrattaparkla koos elektrirataste laadimise võimalusega.
Jalutuskäigu kaugusel on ühistranspordi peatused, söögikohad ja kauplused (Mustika Keskus, Lidl, Decora).
KAUGUSED / SÕIDUAEG
*Rocca Al Mare keskus 3,1 km / 7 min
* Kristiine keskus 4,7 km / 9 min
*Telliskivi loomelinnak 5 km / 10 min
*Viru Keskus 6,7 km / 14 min
* Lennujaam 8,9 km / 14 min
*Tallinna Sadam 8 km / 17 min
*Lasnamäe Centrum 13,2 km / 21 min
*Viimsi Keskus 18,3 km / 31 min
Kui otsid pinda Mustamäel, võta ühendust ja küsi lisainfot.
Hoone / objekti info
Saada päring
Jaga kuulutust
Prindi kuulutus






















