Kasutame küpsiseid, tagamaks võimalikult mugava ja individuaalse kasutajakogemuse.
Pärnu mnt 160d
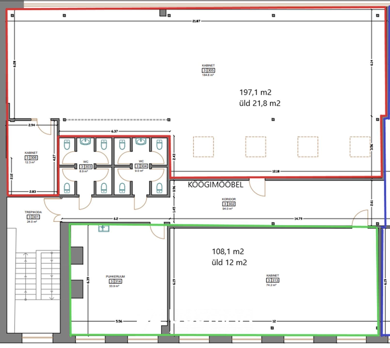
SOODNE BÜROOPIND PÄRNU MAANTEEL
Tallinn, Kesklinna linnaosa, Pärnu mnt 160d
218.90 m2, 5.62 €/m2
17 tuba
1230 €
Üürile anda soodsa hinnaga korralik ja mugav büroo (plaanil punase piirjoonega) Pärnu maantee hinnatud äripiirkonnas. Avar ja valgusküllane avatud planeeringuga pind paikneb hoone 3. korrusel, ligipääs on trepist, lift puudub. Tualettruumid on koridoris.
Pinnal on gaasiküte, sundventilatsioon ja jahutus. Kõrvalkulud on mõistlikud. Hoones on valve, ligipääs üürnikele 24/7.
Hoone on mugavas asukohas, südalinnast vaid mõneminutilise sõidu kaugusel. Hoovis on tasuta parkimine, kohe hoone juures on ka ühistranspordipeatused. Ümbruses on mitu söögikohta, spordiklubi, erinevad ärid ja büroohooned.
Üür 1230 eurot kuus. Lisanduvad kõrvalkulud ja käibemaks.
Kui otsid soodsat bürood, kuhu kohe sisse kolida, võta ühendust ja tule vaatama!
Pakkumine on vahendustasuta.
Võta minuga ühendust ja küsi lisa!
Hoone / objekti info
Muu info
Saada päring
Jaga kuulutust
Prindi kuulutus






































