Kasutame küpsiseid, tagamaks võimalikult mugava ja individuaalse kasutajakogemuse.
Roosikrantsi 11
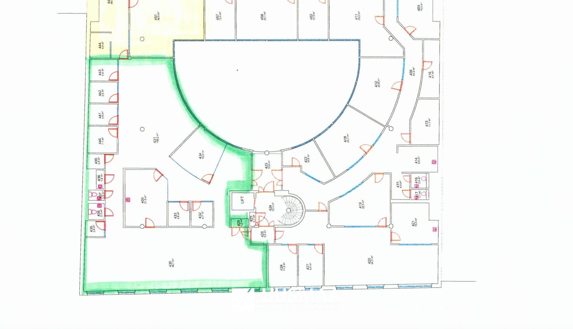
ILUS JA AVAR BÜROO SÜDALINNAS
Tallinn, Kesklinna linnaosa, Roosikrantsi 11
286.10 m2, 16 €/m2
8 tuba
4577.60 €
Üürile anda ilus büroo esinduslikus Šveitsi Ärimajas, Vabaduse Väljaku naabruses.
Pinna koosseisu kuulub kaks suurt avatud tööala, mida eraldavad nõupidamisruumi ja ruumikas kööginurk. Olemas on hulk väikeseid kõnebokse, serveriruum, tualetid ning esinduslik vastuvõtuala. Pind on valmis kohe sisse kolimiseks.
Meeldiva sisekliima tagab kaasaegne ventilatsiooni- ja jahutussüsteem, hoone üldalad ja büroopind on renoveeritud. Hoones on päeval administraator, avar fuajee ja konverentsiruumid võimaldavad korraldada kliendiüritusi, koolitusi vms. Samas on olemas ka ruumid privaatseteks vestlusteks.
Parkimine hoone maa-aluses parklas kuutasuga 150 eur + km (vabade kohtade olemasolul), avalikud parklad on samuti lähedal. Hoone garaažis on ka jalgrattaparkla, 1. korrusel on üldkasutatav duširuum.
Üür 16 eur/m2. Lisanduvad kõrvalkulud ja käibemaks.
KUI VAJAD KIIRELT ESINDUSLIKKU BÜROOD, TULE VAATAMA!
Pakkumine on vahendustasuta!
Hoone / objekti info
Muu info
Saada päring
Jaga kuulutust
Prindi kuulutus










































