Kasutame küpsiseid, tagamaks võimalikult mugava ja individuaalse kasutajakogemuse.
Ahtri tn 6a
KAUNI VAATEGA BÜROO PARKIMISKOHTADEGA, JÄRELMAKSU VÕIMALUS
Tallinn, Kesklinna linnaosa, Ahtri tn 6a
583.60 m2, 2800 €/m2
1 634 080 €
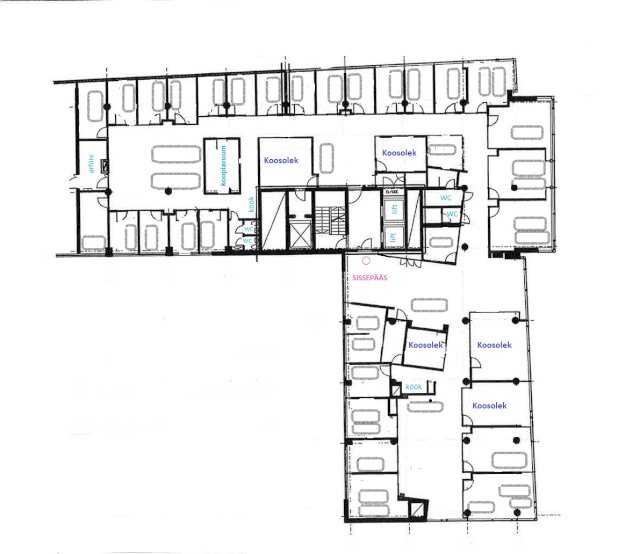
Müüa esinduslik büroo (lisatud plaanil punase piirjoonega) hästi tuntud Admirali Majas. Pind on suurte akendega ning valgusküllane, akendest avanevad kaunid vaated Vanalinnale, sadamale ning Reidi teele ja Piritale. Ruumid on ehitatud omaniku enda tarbeks ja kasutatakse praegu samuti omaniku poolt. Ruumide väljaehitamisel ja sanitaarremondil on kasutatud kvaliteetseid materjale.
Ruumides on keskküte, sundventilatsioon ja ruumipõhiselt reguleeritav sisekliima, suur osa aknaid on avatavad. Hetkel on pinnal hulk 1-2 töökohaga kabinette, eri suurusega koosolekuruumid, kööginurk, tualettruumid jm abiruumid. Võimalik on pakkuda ka mööblit. Vajaduse korral saab ruumilahendust muuta. Kui tarvis suuremat pinda on võimalik on pinnaga liita 261,5m2 naaberpind (plaanil rohelise piirjoonega).
Hoones on avar fuajee, samuti valvesignalisatsioon ja videovalve ning väljaspool tööaega lukustuvad välisuksed. Büroohoone parkimishoone uksed on lukustatud ööpäeva ringselt. Külastajatele on võimalik uksed kontorist avada.
Fassaadile saab paigaldada ettevõtte nime/logo, mis on hästi nähtav tiheda liiklusega Ahtri tänavalt.
Admirali Maja on suurepärases asukohas südalinnas: väga hästi leitav ning mugavalt ligipääsetav nii jalgsi, autoga kui ühistranspordiga. Hoones on oma parkimismaja (pinna juurde saab üürida parkimiskohad). Parkimiskohad on parkimismaja kinnises osas. Hoone ees on ruumikas parkla, kus saab vajaliku hulga lisakohti üürida. Klientidel on mugav parkida maja kõrval avalikus tasulises parkimisalas või Nautica Keskuse parklas.
Naabruses on populaarne Rotermanni Kvartal, kus on palju söögikohti, samuti Nautica ja Lootsi Keskus, kus samuti suur hulk erinevaid restorane, kauplusi ja teenuseid.
Hind 2800 eur/m2. Parkimiskoha hind 25 000 eurot. Hinnad ei sisalda käibemaksu ja hindadele käibemaks ei lisandu. Võimalik on tasuda järelmaksuga. Tee oma pakkumine.
Soovi korral on võimalik pind üürida, samuti on võimalus osta suurem pind - küsi lisainfot!
Kui otsid kauni vaatega südalinnabürood ning eelistad ostu üürile, siis see on suurepärane võimalus!
Hoone / objekti info
Muu info
Saada päring
Jaga kuulutust
Prindi kuulutus




























































