Pärnu mnt 15
ILUS BÜROO REKONSTRUEERITUD KAWE PLAZAS
Tallinn, Kesklinna linnaosa, Pärnu mnt 15
757 m2, 17 €/m2
12 869 €
Üürile anda kogu korrus Vabaduse väljaku ääres Kawe Plaza büroohoones. Kawe Plaza on üks tuntuimaid Tallinna büroohooneid, sest see on Eesti esimene täisklaasfassaadiga büroohoone, mis valmis 1998. aastal. Silmapaistvalt kauni arhitektuuriga hoone läbis 25. sünnipäeva aastal põhjaliku uuenduskuuri ning avati taas 2024. aastas uue A-klassi büroohoonena.
Hoonel on uus klaasfassaadi, energiatõhusad uued tehnoseadmed ning hoone automaatikat juhib tehisintellekt.
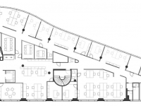
Üüripind ehitatakse välja vastavalt üürnike vajadustele ja valmib mõne kuuga alates üürilepingu sõlmimisest. Saad luua oma ettevõtte vajadustele vastava uue ja hubase kontori (galeriis on näidiseks üks võimalik ruumiplaan ja siseviimistluse näidisena pilt valmis büroost). Hoone sobib ühtmoodi hästi nii avatud bürood kui kabinettidega töökeskkonda eelistavatele ettevõtetele. Suured aknad, mis algavad põrandapinnast 50 cm kõrguselt teevad ruumid hästi valgusküllaseks. Stabiilset sisetemperatuuri hoiavad automaatsed (läbipaistvad) välikardinad (Tatari tn poolsetel akendel). Ruumides on kaasaegne kliimasüsteem – nõudluspõhine ventilatsioon, jahutus, küte.
Hoone all garaažis on võimalik üürida parkimiskohti, samas on ka jalgrattparkla. Naabruses on ka avalikud parklad ja ühistranspordipeatused. Ümbruses on palju söögikohti, kaupluseid ja teenuseid.
Üür alate 17 eur/m². Lisanduvad kõrvalkulud ja käibemaks.
Kui otsid uut oma vajaduste järgi valminud bürood, tule vaatama!
NB! Võimalik on üürida ka suurem või väiksem pind.
Pakkumine on vahendustasuta.
Hoone / objekti info
Muu info
Pakkumised selles hoones
Pärnu mnt 15
225.00 m2
3825.00 €
Pärnu mnt 15
450.00 m2
7650.00 €
Saada päring
Jaga kuulutust
Prindi kuulutus



























