Kasutame küpsiseid, tagamaks võimalikult mugava ja individuaalse kasutajakogemuse.
Kopli 16
Kohviku- või äripind Telliskivis!
Tallinn, Põhja-Tallinna linnaosa, Kalamaja, Kopli 16
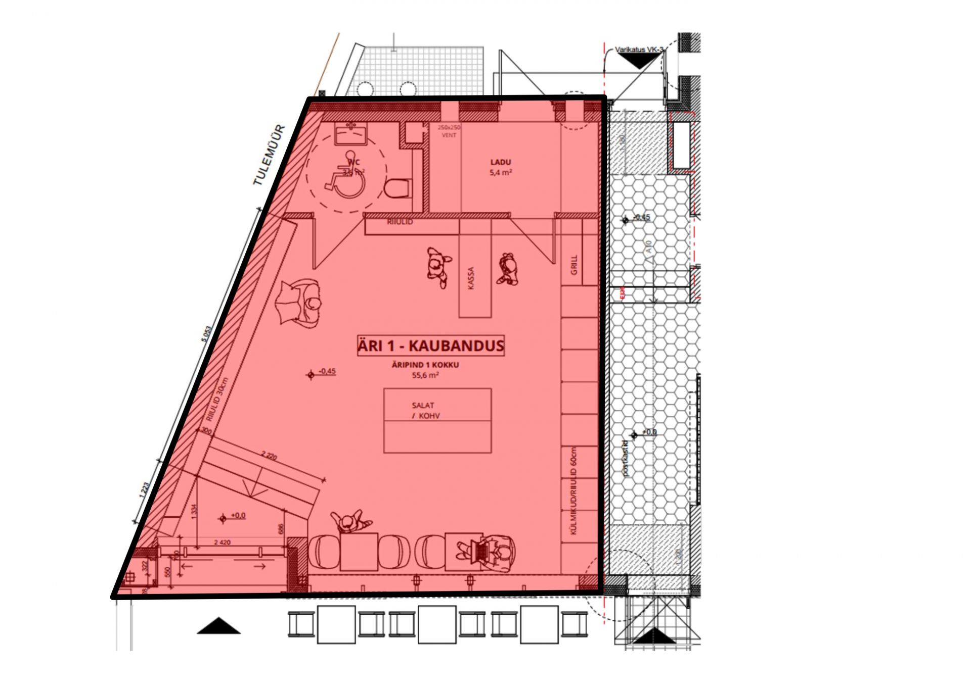
55.60 m2, 26.98 €/m2
1 tuba
1500 €
Üürile anda väga hea asukohaga ja nähtavusega äriruum Telliskivis. Tegemist on hetkel kohvikuna kasutuses oleva ruumiga, mis asub kohe Balti jaama kõrval, Telliskivi trammipeatuse vastas.
Lao ja wc vahel on ventilatsiooni šaht 250x250mm. Kui jääb praegusest ventilatsioonist väheks annab sinna sundventilatsiooni torusid juurde tekitada.
Varasemalt on üürnik saanud ka nõusoleku linnast tasu eest suvekuudel välja laudade paigaldamiseks.
Uuele üürnikule on pind üleandmiseks valmis 01.11.2025.
Hoone / objekti info
Saada päring
Jaga kuulutust
Prindi kuulutus









