Estonia pst 9
ESINDUSLIK KABINETTIDEGA BÜROO SÜDALINNAS
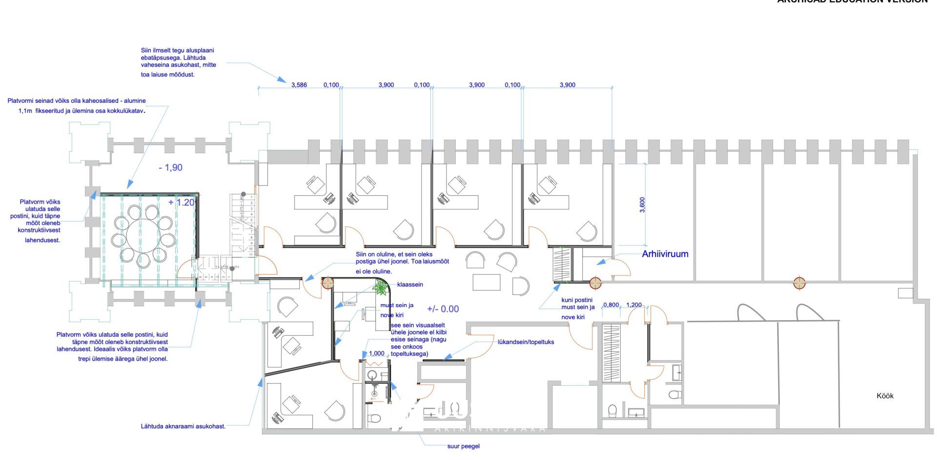
Tallinn, Kesklinna linnaosa, Estonia pst 9
359 m2, 15.90 €/m2
13 tuba
5708.10 €
Üürile anda kauni siseviimistlusega esinduslik büroo Estonia pst 9 Solarise bürookorpuses.
Pinna koosseisus on kabinetid, nõupidamisruumid, kööginurk, esinduslik vastuvõtuala ja tualettruumid. Kirss tordil on hoone nn torniosas paiknev vitraažidega kaunistatud akendega avar lounge ja antresoolkorrusel paiknev stiilne nõupidamisruum. Kui vajad väiksemat pinda, on võimalik büroo kaheks jagada.
Hoones on kaasaegne sundventilatsioon ja jahutus, mis tagab meeldiva sisekliima. Ligipääs üürnikele on 24/7.
Hoone on suurepärases asukohas südalinnas, kuhu mugav ligipääs nii jalgsi, autoga kui ka ühistranspordiga. Parkimiskohti saab üürida hoone all asuvas parklas (Europark), kus saavad parkida ka külalised.
Üür 15.9 eur/m2. Lisanduvad kõrvalkulud ja käibemaks.
Kui otsid pinda südalinnas, kuhu kohe sisse kolida, võta ühendust ja tule vaatama!
Pakkumine on vahendustasuta.
Hoone / objekti info
Muu info
Saada päring
Jaga kuulutust
Prindi kuulutus



























































