Kasutame küpsiseid, tagamaks võimalikult mugava ja individuaalse kasutajakogemuse.
Peterburi tee 1a
Scandium Park
Tallinn, Kesklinna linnaosa, Peterburi tee 1a
6200.00 m2
Scandium Park on 14-korruseline esinduslik rohebüroo Tallinna kesklinna piiril. Hoone arendaja Scandium Kinnisvara on seadnud eesmärgiks nii ülima keskkonnasõbralikkuse kui ka inspireeriva töökeskkonna loomise.
Hoonesse tuleb 24h avatud jõusaal, multimeediaruum, kohvik ning teadliku taimevalikuga katuseterrass - roheaed.
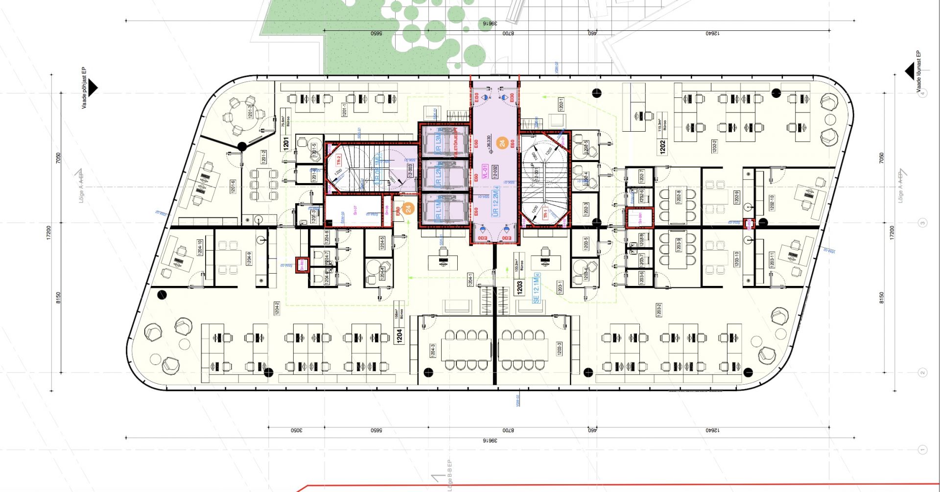
Hoones on kokku 6200m2 üüritavat pinda. Korruste suurus on madalamas osas ca 870m2 ja torniosas 520m2, mida saab jagada mitmaks väikeseks bürooks. Et hoone paikneb kesklinna ühes kõrgeimas piirkonnas, pakub enamus korruseid lummavaid vaateid linnale ja merele.
Kõrghoone ehitatakse vastavalt LEED printsiibile ja kasutusel on arvukalt keskkonda säästvaid ja roheenergiat tootvaid lahendusi: päikesepaneelid katusel ja fassaadil, tark valgustus ja ventilatsioon. Hoone energiaklassi skaalal on eesmärk olla vähemalt 10% parem kui Eestis nõutav A-klass.
Siseviimistlus lähtub samuti rohelisest mõtteviisist ning kasutatud on kaasaegseid, loodust ja keskkonda säästvaid materjale. Ruumide stilistika on hele, kasutatud on naturaalset puitu ja tekstiile ning heledaid krohvipindu, mis muudab töökeskkonna hubaseks. See on hoone, mis inspireerib ja kiirgab head energiat!
Maja all on autoparkla, maja ees Bolt Drive parkimiskohad. Loomulikult on olemas elektrirataste ja -tõukside tasuta laadimisvõimalus, samuti soe rattamaja koos kappide ja duširuumidega.
Hoone autorid on Indrek Suigusaar ja Jaan Jagomägi arhitektuuribüroost Pluss, sisearhitektuuri autor on maineks KAOS Arhitektid.
Hoones saab pakkuda büroosid suuruses 120m2 kuni 3000m2.
Kui Sulle on oluline roheline mõtteviis ja hindad uuenduslikkust, siis see büroohoone on Sulle!
Hoone valmib 2027. aastal.
Hoone / objekti info
Saada päring
Jaga kuulutust
Prindi kuulutus
















































