Kadaka tee 48
Avar büroopind, tasuta parkimine!
Tallinn, Mustamäe linnaosa, Mustamäe, Kadaka tee 48
158.30 m2, 6 €/m2
Soodushind1000 €
Üürile anda renoveeritud ja kvaliteetse viimistlusega büroopind Kadaka teel. Bürool on kõrged laed, rohkelt loomulikku valgust tänu akendele kolmes suunas ning võimalus paigaldada hoone fassaadile valgusreklaam.
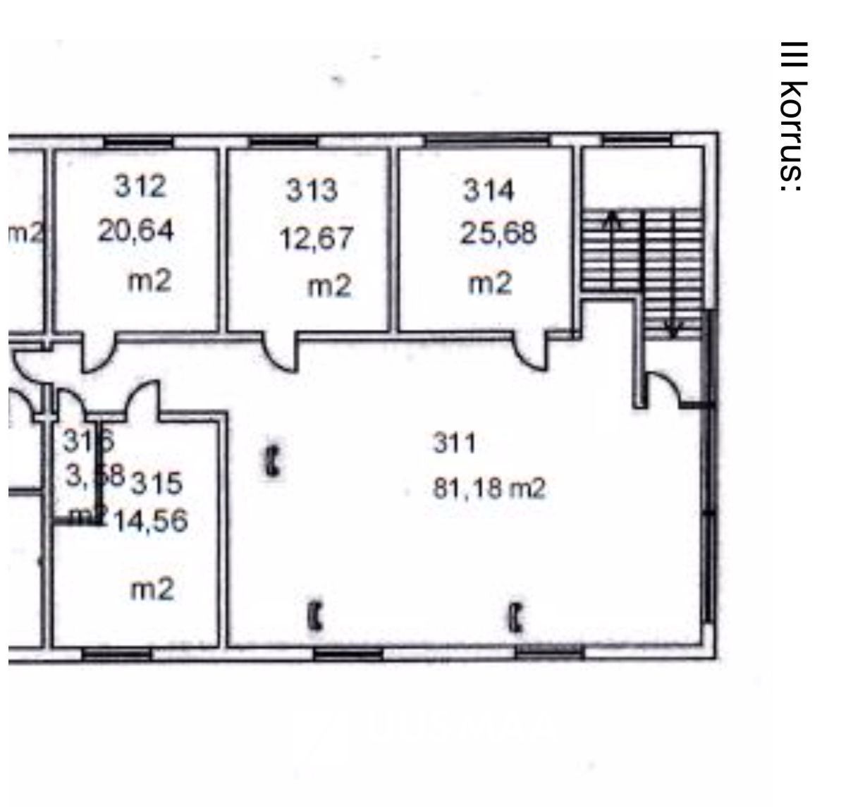
BÜROOPIND
- Asub 3. korrusel
- Põrandal hooldatud parkett
- Üldpind 158,3 m²
- Soovi korral fikseeritud kõrvalkulud aastaringselt 1,8 €/m² + km
- Eraldi möbleeritud köök
PLANEERING
- Avatud ja avar kõrgete lagedega peasaal
- Kolm eraldi töö- või kabinetiruumi
- Köök
- WC
Kaks eraldi sissepääsu: peauks tänava poolt ja lisasissepääs parklasse hoone tagant.
HOONE JA ASUKOHT
- Väga hea asukoht Kadaka teel, vahetus läheduses Kadaka Selver
- Hea ligipääs ühistranspordile
- Kiire ja mugav ühendus kesklinna ning teiste Tallinna piirkondadega
- Läheduses mitmed kauplused ja toitlustusasutused
PARKIMINE
- Tasuta parkimisvõimalus nii töötajatele kui klientidele
PIIRKONNA ARENG
- Arenev ja perspektiivikas ärikeskkond, kus tegutseb palju ettevõtteid
SÕIDUAEG OLULISTESSE SIHTPUNKTIDESSE
- Kristiine Keskus – 4,8 km / ca 7 min
- Viru Keskus – 6,4 km / ca 10 min
- Tallinna Sadam – 7,2 km / ca 12 min
- Telliskivi Loomelinnak – 5,1 km / ca 8 min
- Mustamäe Keskus – 2 km / ca 3 min
- Tallinna Lennujaam – 9,3 km / ca 11 min
- Rocca al Mare Keskus – 3,1 km / ca 5 min
Üürihinnale lisandub käibemaks.
Lisainfo:
Lauri Simulmann
telefon: +372 55668416
e-mail: lauri@uusmaa.ee
Hoone / objekti info
Muu info
Võta ühendust
Saada päring
Jaga kuulutust
Prindi kuulutus



















































